SCX800A-3 Crawler Crane
Features
Setting Out for New Heights.
The SCX800A-3 was developed for greater eco-friendly operation and work efficiency. Now powered with an engine that clears the world’s toughest EU Stage V emission regulations, it is even more capable on worksites as its clean performance is easy on both the environment and society alike. Featuring the same compact style that is suited to any location, the SCX800A-3 controls have been fine-tuned immensely for excellent work efficiency and outstanding running costs. A machine that truly revolutionizes any workplace it is operating on. Designed to take your business to new heights; sophistication and manoeuverability under your control.

Specifications
| Liftcrane | Values |
|---|---|
| Max. lifting load × Working radius | 80 t × 3.3 m |
| Boom length | 9.5 - 54.5 m |
| Crane jib length | 9.0 - 18.0 m |
| Boom + crane jib length | 45.5 + 18.0 m |
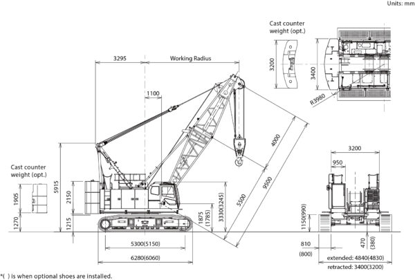
Dimensions

To hear about how we can help with all your lifting needs.

